【クレイドルガーデン若葉区・千城台南 限定2棟】

更新 2020.9.1 見学会情報新築戸建オープンハウス


ポイント

最終1棟!!8/24付全棟100万円ダウン!!【新築価格2,280万円税込】
南道路で日当たりサンサン♪
並列駐車3台可能・小学校・コンビニ・スーパー等至近(*^-^*)
建物完成!!オープンハウス開催中♪

この土地のココがイイ!!
□千城台駅徒歩7分
□小学校・公園・コンビニ・スーパー等至近
□日当たり良好な南道路
□並列駐車3台可能

この建物のココがイイ!!
□建物主要な部位10年保証瑕疵保証
□木造在来工法(木造軸組パネル工法)・耐震ボード「ダイライト」・ベタ基礎を採用
□フラット35S対応住宅 □制振装置標準装備 □オール電化
□すまい給付金対象 □設計性能評価取得 □耐震最高等級取得

ミライエのココがイイ!!
☆☆ミライエでご成約のお客様には10年間の設備(例、エアコン・給湯器等)の
保証をお付けするプランをサービスにてご用意しております♪☆☆






物件概要

価格

2,280万円税込

住所 千葉市若葉区千城台南1-4-3
交通

 千葉モノレール千城台駅徒歩7分

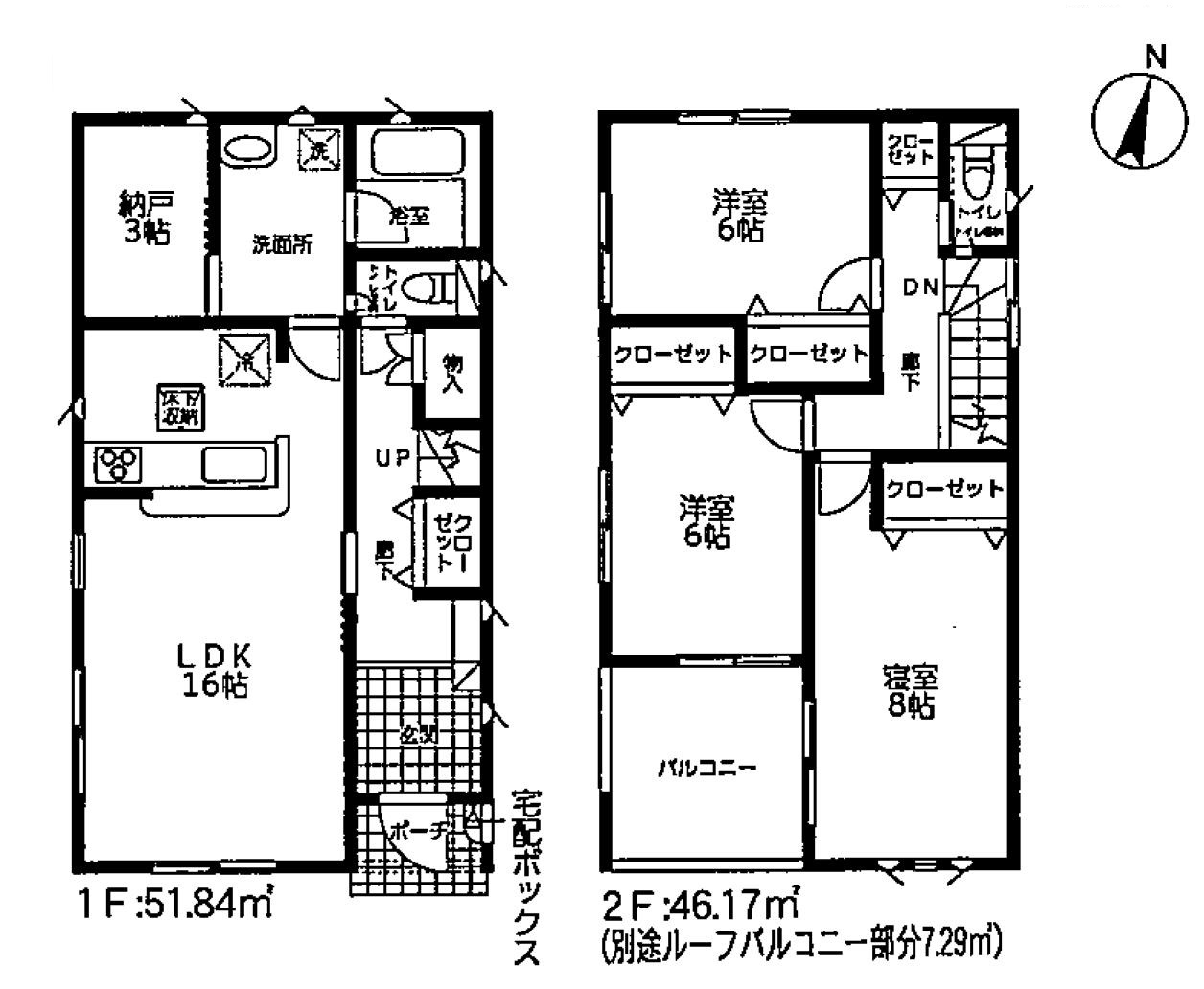
建物面積

98.01㎡~104.88㎡

土地面積 112.31㎡~119.55㎡
間取り 3SLDK
完成時期

令和2年7月初旬

引き渡し予定  即時
販売規模 (販売中1棟/2棟総戸数)
接道情報  南側9.9m公道
設備

 制震・耐震装置標準装備

公営上水道、本下水、都市ガス

権利  所有権
都市計画  市街化区域
建築確認番号・開発許可番号  
備考

~クレイドルガーデン若葉区・千城台南 全2棟~

ポータルサイト掲載ページ一覧 下記をクリック♪

☆SUUMO☆

☆athome☆



最終1棟!!8/24付全棟100万円ダウン!!【新築価格2,280万円税込~】

南道路で日当たりサンサン♪

並列駐車3台可能・小学校・コンビニ・スーパー等至近(*^-^*)

建物完成!!オープンハウス開催中♪

 

【全2棟 区画図・各間取図】

 

 

【現地写真一覧】

【2号棟分譲地現地一覧】

 

 

【建物仕様】

【ライフインフォメーション】

 

そして!!ミライエなら特典盛りだくさん♪



見学会はこちら
ご案内できる物件情報はこちらから