【リーブルガーデン八街・大木 全2棟】

更新 2022.12.1 見学会情報新築戸建オープンハウス


ポイント

おかげ様で完売しました(*^-^*)これまでたくさんのご来場ありがとうございました(*‘∀‘)
11/27付大幅値下げ!最終1棟!!【新築価格1,990万円税込】
八街駅【徒歩11分】コンビニ・スーパー等至近!
南道路で日当サンサン!敷地69坪以上・並列駐車3台可能♪
人気の実住小エリアです(*^-^*)
オープンハウス開催中!

この土地のココがイイ!!
□八街駅徒歩11分
□コンビニ・スーパー等至近
□南道路で日当たりサンサン
□敷地広々69坪
□駐車3台可能
□10年間地盤保障

この建物のココがイイ!!
□建物主要な部位10年保証瑕疵保証
□フラット35S対応住宅 
□設計性能評価取得 □耐震最高等級取得

□■当社にて現地案内会開催中!!■□
住宅ローン相談も無料にて受付
・頭金・自己資金0円住宅ローン・諸費用オプション(引越費用等)ローン
・その他、住替ローンetc
他社さんに断られた方も、当社までぜひ御相談下さい!
【平日・夜間のご内覧希望もお気軽にお声がけ下さい♪】

◇◆『オンライン見学会♪』も実施中!◆◇
◯状況的に外出するのが不安な方
◯遠方にお住まいで店舗や現地へ直接行くのが難しい方
ミライエまでお気軽にご相談下さい♪

LINEのビデオ通話やZOOM等を使い、おうちにいながらご家族でご見学頂けます♪
住宅ローン相談等各種打合せも可能です!
当社スタッフが現地や店舗からテレビ電話にてご案内致します♪

ご要望の際はお気軽にお問い合わせ下さい♪






物件概要

価格

1,990万円税込

住所 八街市大木671-45
交通

 JR総武本線八街駅徒歩11分

建物面積

110.96㎡~111.78㎡

土地面積

230.92㎡~284.26㎡

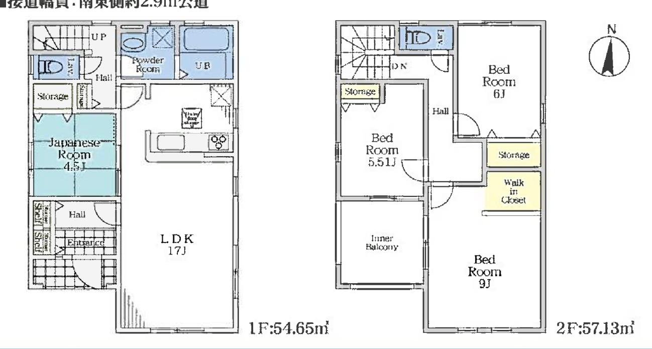
間取り 4LDK
完成時期

令和4年9月下旬完成予定

引き渡し予定

令和4年9月下旬予定

販売規模 (販売中2棟/2棟総戸数)
接道情報  南側1.82m(セットバック後2.90m)
設備

 公営上水道、本下水、プロパンガス

権利  所有権
都市計画  非線引き区域
建築確認番号・開発許可番号  
備考

~リーブルガーデン八街・大木 全2棟~

ポータルサイト掲載ページ一覧 下記をクリック♪

☆SUUMO☆

☆athome☆



おかげ様で完売しました(*^-^*)これまでたくさんのご来場ありがとうございました(*‘∀‘)

11/27付大幅値下げ!最終1棟!!【新築価格1,990万円税込】

八街駅【徒歩11分】コンビニ・スーパー等至近!
南道路で日当サンサン!敷地69坪以上・並列駐車3台可能♪
人気の実住小エリアです(*^-^*)

オープンハウス開催中!

 

【全2棟 区画図・各間取図】

 

【2号棟 現地写真一覧】

 

【ライフインフォメーション】



見学会はこちら
ご案内できる物件情報はこちらから